لوغو
Darcom Construction Company
شركة داركم للإنشاءات والتطوير العقاري
المشروع السكني الأول
غلاف المشروعلوغو داركم
◆ مشروع داركم السكني الأول ◆
سكن حديث
بموقع استراتيجي
في أكثر مناطق المدينة حيويةً ونمواً
📍 حلب  ·  قبر الإنكليز  ·  شارع آسيا
5طوابق
20شقة سكنية
160م² متوسط المساحة
4شقق / طابق
لوغو
Darcom Construction Company
شركة داركم للإنشاءات والتطوير العقاري
الموقع · 02
الموقع الجغرافي
موقع مميز وحيوي
الموقع النهاريالموقع الليلي
▸ العنوانحلب · قبر الإنكليز · شارع آسيا
يبعد عن
  • دوار الليرمون4 كم
  • الطريق الدولي
    حلب — غازي عنتاب
    1 كم
  • معمل آسيا400 م
لوغو
Darcom Construction Company
شركة داركم للإنشاءات والتطوير العقاري
المشروع · 03
تفاصيل المشروع
مشروع داركم السكني الأول — حلب 2026
صورة المبنى
🏢5طوابق
🏠20شقة سكنية
1مصعد حديث
4 شقق في كل طابق
مساحات 158–162 م²
تصميم عصري راقٍ
مناسب للعائلات
موقع استراتيجي حيوي
إطلالات شرقية وغربية
تفاصيل الغرف والأبعاد (سم)
غرفة استقبال600×395
غرفة معيشة600×370
غرفة نوم أبوين500×325
غرفة نوم445×380
مطبخ485×300
شرفة325×185
شرفة مطبخ325×95
حمام245×240
غرفة مونة180×130
تواليت250×125
المساحة158–162 م²
عدد الغرف4 غرف
الحمامات2 حمام
لوغو
Darcom Construction Company
شركة داركم للإنشاءات والتطوير العقاري
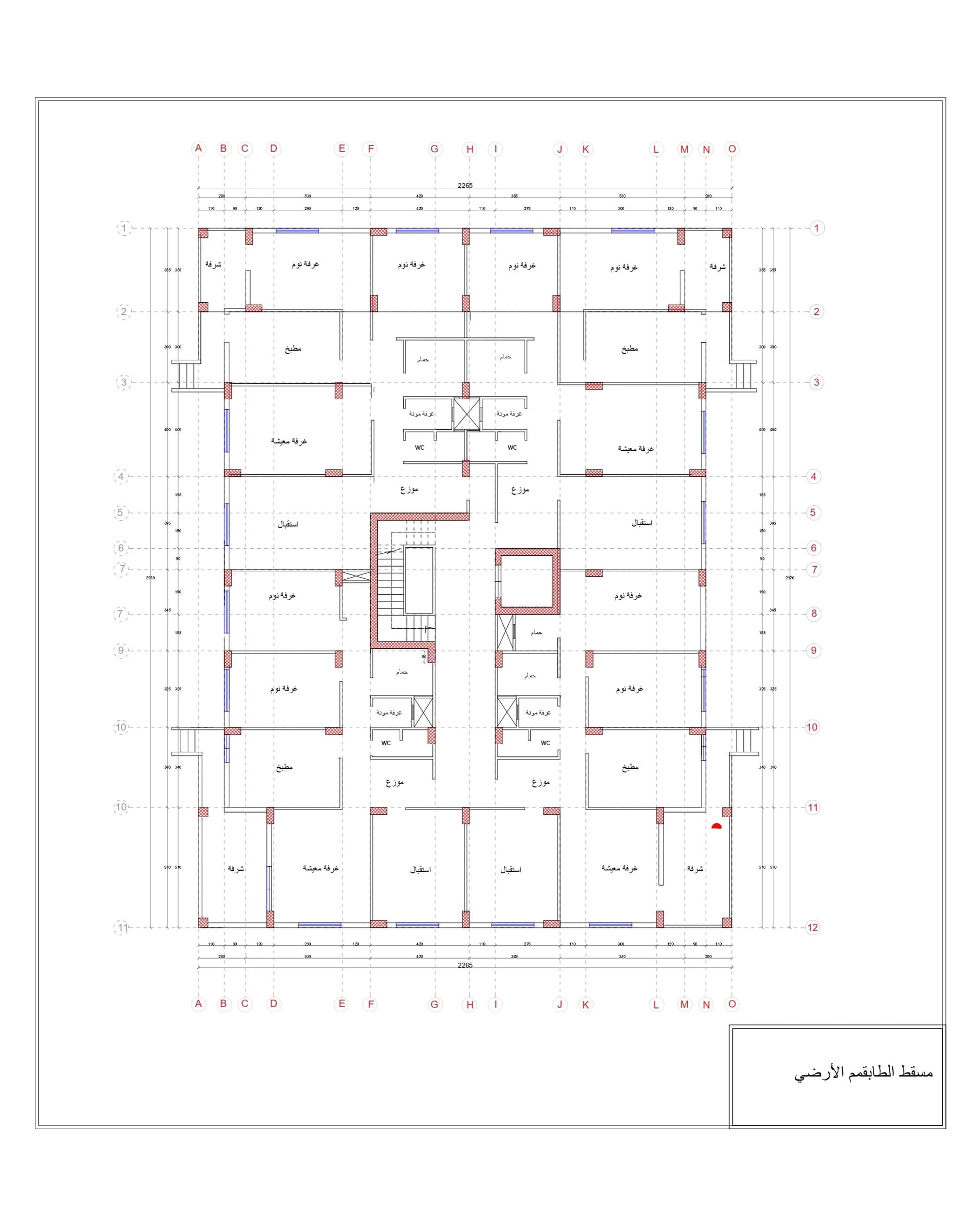
المخطط · 04
مخطط الطابق
توزيع الوحدات — 4 شقق في كل طابق
مسقط الطابق الأرضي
مسقط الطابق الأرضي
لوغو
Darcom Construction Company
شركة داركم للإنشاءات والتطوير العقاري
المخطط · 04
مسقط الطابق المعلق
مسقط الطابق المعلق
لوغو
Darcom Construction Company
شركة داركم للإنشاءات والتطوير العقاري
المخطط · 04
مسقط الطابق المتكرر
مسقط الطابق المتكرر
لوغو
Darcom Construction Company
شركة داركم للإنشاءات والتطوير العقاري
الأسعار · 05
جدول الأسعار
جميع الشقق حسب الطابق والاتجاه — بالدولار الأمريكي
جدول الأسعار
* التسليم على العضم
لمحة من المشروع
لوغو
Darcom Construction Company
شركة داركم للإنشاءات والتطوير العقاري
لمحات من المشروع · 07
لمحة من المشروع 1لمحة من المشروع 2لمحة من المشروع 3
لوغو
Darcom Construction Company
شركة داركم للإنشاءات والتطوير العقاري
تواصل · 08
لا تتردد في
التواصل معنا
فريقنا جاهز للإجابة على جميع استفساراتك وحجز شقتك في مشروع داركم السكني الأول
📍 العنوانحلب — مقابل جامع السيدة عائشة
💳 تقسيط على ثلاث دفعات

© 2025 شركة داركم للإنشاءات والتطوير العقاري · جميع الحقوق محفوظة · DARCOM CONSTRUCTION COMPANY